



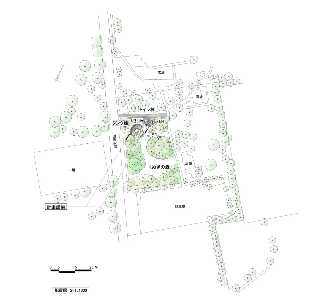
トイレトワはそれを目に見えるかたちにした循環と再生の建築である。単なるトイレではなく、これからの廃棄物がない 循環型社会のモデルとして産業廃棄物の再資源化を行う石坂産業の本社併設の環境教育の場、くぬぎの森につくられ た。
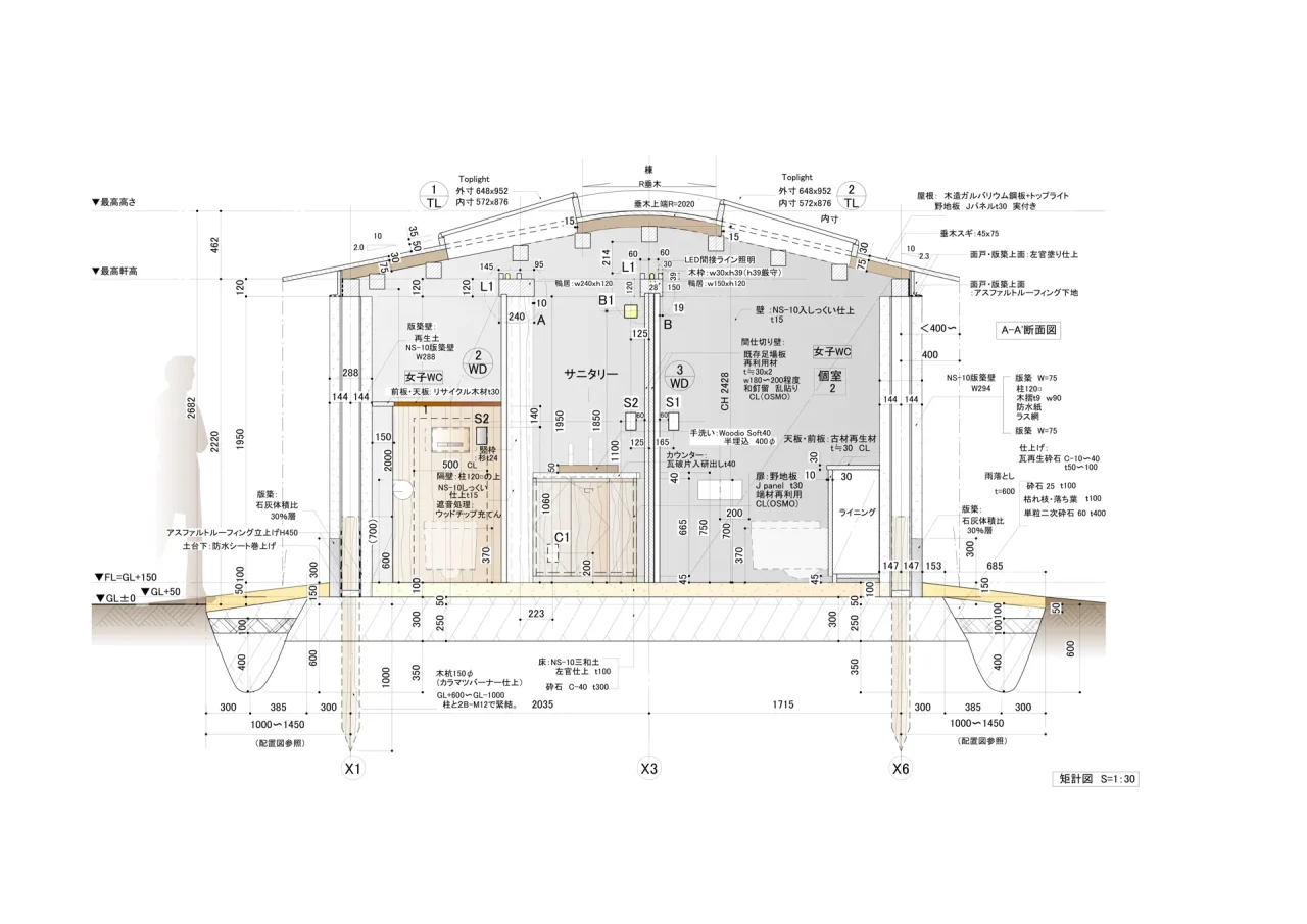
石坂産業開発の再生土NS-10による円形の版築壁のトイレ棟とその排水を再生・循環する過程を見せるタンク棟からな る木造建築で、環境負荷低減のため基礎にはコンクリートを使わず砕石・木杭を用いてつくられた。
使用素材も循環をテーマにトイレ棟は内壁と土間も再生土と再生木材、ガラス再利用材、手洗いと便器もウッドチップの再生製品を使用。
トイレ排水は、完全循環し再利用するだけでなく、農業用水として周囲の菜園作物の成長を促進させる。さらに建物周 囲に「大地の再生」として自然素材を使い土中に水と空気を通したことで、周辺一帯の森が再生され、さわやかな空気が 流れている。 木の施工は若手大工による手刻みで版築、塗壁、三和土、モルタル研ぎ出しなどの左官技術も活かし、素 材だけでなく木と土の建築伝統技術の循環も行っている。
______
Photo, takeshi noguchi
Drawings, Tono Mirai architects
コンクリートを使わずほとんどが「土に還る」素材と再生した素材でつくられている。
ずらして配置された再生土による2つの半円形の版築壁が森の中でゆ ったりとした動きと循環を生み、天窓か らの光を伴いながら建物全体が光の井戸として天と地をつなぐ。
メインの素材として使われたNS-10は建主の石坂産業とアイエスエンジニアリングが共同開発した再生土であ る。同社に運び込まれたハウスメーカーの住宅の解体材の石膏ボードと土の混合物を同社工場で分別し、精製し たもの。これまで舗装の路盤材としての使用しかなかったがそれを今回はじめて建材として使用した。
圧縮強度の不足により単体での版築構造にはせず木造の軸組に仕上げとして用い、消石灰を混ぜて突固めてでき たのがこの中外各々75ミリ、計294ミリの版築壁である。 それだけでなく、間仕切りにはしっくいを混ぜて塗 り壁として、土間には消石灰と混ぜ三和土として使用。再生土の可能性を試みた。


複合発酵は国内で20年以上の実績があるが、ここでは21世紀の循環型社会のショーケースとして洗練されたデザインの 中で水循環の機構を見せることを意図した。
既存の樹木を残しながら発酵層-合成層-触媒タンクという複合発酵のプロセスを円弧状に配置し、円形の中庭をはさん だレイズドベッド(立体菜園)とともに水の循環を表現している。
全体のスケールを抑えるよう中庭側に2/10の片流れの屋根とし、目隠しの扉を外してタンクを見ることができる。 外壁は武蔵野の里山をイメージし、県産材の巾が異なる杉板を目透に乱貼りしたもの。
自然素材由来の木材保護剤ウッドロングエコを塗布し、紫外線との経年変化により1枚ごとに異なる色合いに変化する。板の隙間から木漏れ日と実際の森の景色を見ることができ、森となじむ景観を形成している。

このトイレの排水の処理と再生には、高嶋康豪博士開発の複合発酵(EMBC)というバイオテクノロジーが用いられている。 好気性菌と嫌気性菌を共存、共栄、共生させることにより、発酵・分解・発酵合成・融合の変化が生まれ、水が浄化されて汚水中の雑菌、悪性細菌、大腸菌がゼロになり無臭で飲料可能なほど透明になる。その過程でできた酵素水が無限に循環し、その酵素結合結晶を持つ水は土壌を活性化し農作物の生産性向上の効果がある。

今回のトイレ建築に伴い、周囲の森と土壌が弱っており外構整備とともに森を再生する作業としてWAKUWORKSによるトイレを中心とした森の「大地の再生」工事を行った。
土中に木枝、落ち葉、竹炭、くん炭、などの敷地で手に入る植物や植物由来の素材を縦横に埋込み、地中に水脈と空気の流れをつくることで、土壌の団粒化、土中の菌糸、根系、微生物、土中生物などの働きを活性化させ、土壌が本来持つ力を育む。
雨落しには瓦再生砕石、歩道にはウッドチップや浅間石を用いて仕上げた。固く水はけが悪かった土がこの工事により水たまりがなくなり、木々の再生とともにさわやかな風な流れ、森の中に土-木-建築-土という水と空気の循環ができたことが実感できる。
木は「水の柱」ともいわれ、土中の水脈から水を吸い上げ、その葉から水蒸気を出す。今回の大地再生の実施により、土中と空気中の目に見えない水の循環が実現し、トイレの複合発酵の水循環とともに森の生態系が再生した。


NHK WORLD-JAPAN 2024.04.25
New Public Restroom Designs
https://www3.nhk.or.jp/nhkworld/en/shows/2101024/
architecturephoto
https://architecturephoto.net/205035/
TECTURE MAG
https://mag.tecture.jp/product/20231012-100056/
ArchDaily
https://www.archdaily.com/1015881/toiletowa-wc-tono-mirai-architects
Archello
https://archello.com/project/toiletowa
gooood
https://www.gooood.cn/toiletowa-by-tono-mirai-architects.htm
WABISABI
https://www.instagram.com/p/DDTTASdsjjC/?img_index=1
dezeen
https://www.dezeen.com/2024/05/03/toiletowa-tono-mirai-architects-japan/
バイオトイレ / 複合発酵システム / 循環型社会 / 曲線 / 版築 / 三和土 / モルタル研ぎ出し / 木造建築
名称 — TOILETOWA トイレトワ
所在地 — 埼玉県三芳町
建築主 — 石坂産業株式会社
主用途 — バイオトイレ
工事種別 — 新築
地域地区 — 市街化調整区域 公園内施設
設計者 — 遠野未来建築事務所 遠野未来
設備 — GEN JAPAN, マルナカ設備工業
監理 — 遠野未来建築事務所 遠野未来
ネームデザイン — TSDO 佐藤 卓
建築 — 寺島工務店
設備 — GEN JAPAN, マルナカ設備工業
外構 — WAKUWORKS
敷地面積 — 公園内施設
建築面積 — 9.9㎡
延床面積 — 9.9㎡
最高の高さ — 2.68m
軒高さ — 2.22m
木造在来工法 1階建て
砕石・木杭(カラマツバーナー)
設計期間 — 2021年1月〜2023年3月
施工期間 — 2023年3月〜8月
・日本IDPA AWARD 国際パイオニアデザイン賞2025 Green Architecture部門 金賞
・crQlr awards 2024「Living Loop Prize」「Removing the Lid Prize」

外構 — 瓦再生砕石、ウッドチップ、浅間石
床 — 再生土 NS-10 (石坂産業)三和土
外壁 — 再生土 NS-10(石坂産業)版築仕上げ
屋根 — ガルバリウム鋼板 t0.35 淀川製鋼 銀黒色 萌(きざし)
内壁 — 再生土 NS-10(石坂産業)しっくい仕上げ、木板古材再利用
軒天・天井 — Jパネルt30 木組現し
開口部 — トップライト VELUX FCM
便器 — Woodio Wood block 色:Polar
手洗い — Woodio Soft 40 色:Polar
水栓 — SANWA AQUAPIA KT0721C
外構・床 — 瓦再生砕石、ウッドチップ、浅間石
内外壁 — 埼玉県産材 杉板t15 w75.90,105 (岡部材木店)竪乱貼り 目透し9
材木保護剤ウッドロングエコ仕上げ (小川耕太郎∞百合子社)外壁 — 再生土 NS-10(石坂産業)版築仕上げ
屋根 — ガルバリウム鋼板 t0.35 淀川製鋼 銀黒色 萌(きざし)
軒天・天井 — Jパネルt30 木組現し
複合発酵設備 — 高島開発工学